北海道十勝・帯広市内の賃貸マンション住宅、賃貸事務所・テナント、駐車場のご用命はじっせんビル計画株式会社まで!
JOY HOUSE
2LDK
3LDK
ヴェルデ(VERDE)
1R
2LDK Aタイプ
2LDK BCタイプ
トリコロールハイツI
1R Fタイプ(2階)
家具付1R(3〜4階)
1DK Cタイプ(5〜7階)
2LDK Dタイプ(5〜7階)
1DK Hタイプ(2階)
1DK Iタイプ(2階)
2DK Gタイプ(2階)
3LDK Eタイプ(5〜7階)
VILLA 8-2
2LDK
クレードルマンション
1K Bタイプ
1K Cタイプ
1DK Eタイプ
2K Dタイプ
2LDK Fタイプ
2DK Gタイプ
3LDK Aタイプ
リーベル828
1K
アベニュー(AVENUE)
1K
ドミール525
1DK
1LK
2LDK
カルム
2DK
Residence E515
2LDK
FUKUNAGAハイツ
2LDK
稲田貸家
南町貸家
自由が丘貸家
ZENRIN24ビル
ぜんりん第3ビル
トリコロールI
(15th Jissen BLD)
ヴェルデ(VERDE)
(7th Jissen BLD)
ドミール525
(2nd Jissen BLD)
IMAGINE21ビル(飲食店ビル)
STELLAR BUILD(飲食店ビル)
大通13丁目パーキング
4丁目パーキング
5-9 PARKING
E1・S9 PARKING
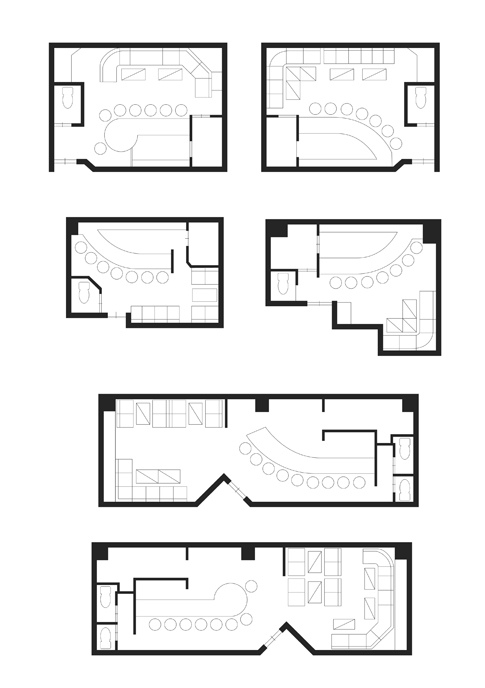
STELLAR BUILD(飲食店ビル)
物件名
STELLAR BUILD
所在地
帯広市西3条南10丁目6-2
構造
鉄筋コンクリート造
家賃
お問い合わせください
管理費
お問い合わせください
駐車料
敷金
お問い合わせください
火災保険料(2年)
別途
仲介料
無料!
備考
※設備情報の○は設備有、×は設備なし
図面と現況の異なる場合は現況優先とします。
チャイム
カーテンレール
カーテン
下足入れ
バルコニー
網戸
照明器具
トイレ
暖房便座
浴室
浴室シャワー
脱衣室
独立洗面台
洗濯機用蛇口
洗濯孔
コンロ
ガス
暖房器具
灯油タンク
湯沸かし器
テレビ配線
電話配線
換気扇
物置
オートロック
エレベーター